
ライオンズマンション瓢箪山
| 販売価格 | 1,450万円 |
|---|---|
| 住所 | 東大阪市六万寺町3丁目16-20 |
| 交通 | 近鉄奈良線 『瓢箪山』 駅 徒歩 17分 近鉄奈良線 『東花園』 駅 徒歩 分 (最寄バス停)下六万寺1丁目 バス停から徒歩6分 |
- ズバ評
合計 - 83点
- 価格
- 18点
- 間取
- 11点
- 管理
- 20点
- リフォ
ーム - 19点
- 向階
- 15点
写真
物件詳細
- 物件番号
- 11220
- マンション名
- ライオンズマンション瓢箪山
- 所在地
- 東大阪市六万寺町3丁目16-20
- 交通 ※
- 近鉄奈良線 『瓢箪山』 駅 徒歩 17分
近鉄奈良線 『東花園』 駅 徒歩 分
(最寄バス停)下六万寺1丁目 バス停から徒歩6分
- 価 格
- 1,450万円
- 専有面積
- 55.24 m2 ( 16.85坪 )
- バルコニー/向き
- 7.68 m2 東
- 所在階
- 8 階建の3 階部分
- 部屋の現状
- 空室(見学可)
- 引渡し時期
- 相談
- 管理費
- 7200円
- 修繕積立金
- 11560円
- ペット飼育
- 不可
- 駐車場状況
- 空無
- 駐車場月額
- 9,000円~10,000円
- 建物構造
- 鉄筋コンクリート造
- 建築年月
- 1996 年(平成8年)3 月
- 総戸数
- 97 戸
- 管理会社
- 大京アステージ
- 管理形態
- 通勤B 週5日以上
- 学校区
- 縄手南小・縄手南中
- 取引態様
- 仲介
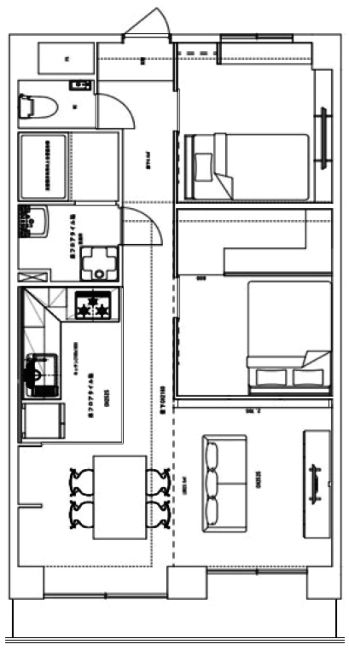
- そんちょうさん
のズバコメ - ◆ 玄関横の洋室には、エアコンが設置可能です。一方、真ん中の洋室は不明なので、現地を確認しておきましょう。また、玄関からリビングまで扉がないので、空調が少し気になるところです。リビングがL字型になっていますので、ダイニングとリビングを使い分けしやすい間取りですね。
- マンション設備
- 電気
- 上水道
- 下水道
- 都市ガス
- 防犯カメラ設置
- ゴミ置き場
- 敷地内・隣接公園あり
- ルーフバルコニー付住戸あり
- 専用庭付住戸あり
- 来客用駐車場
- 自転車置場
- バイク置場
- オートロック
- 管理人室
- 集合ポスト
- 宅配ボックス
- エレベーター:2基
- ペット飼育不可
- インターネット利用可
- 室内設備
- 面格子
- 網戸
- クローゼット
- フローリング
- クッションフロア
- インターホン
- エアコンコンセント
- カーテンレール
- コンセント
- テレビコンセント
- 電話差し込み
- 分電盤
- タオル掛け
- ペーパーホルダー
- 温水洗浄便座
- トイレ換気扇
- 洗濯機用防水パン
- 洗面化粧台
- 浴室換気扇
- システムキッチン
- ガス3口コンロ
- レンジフード
- 給湯器
- バルコニー
- 物干金物
- リフォーム履歴
- ◎2025年(令和7年)9月 システムキッチン・ユニットバス・洗面化粧台・トイレを新調、クロス貼替、クッションフロア貼替、フローリング貼替
- 補足・備考
- ※契約不適合責任免責(→説明/不具合などがあっても売主は修理などしない)です。
- 情報更新日
- 2026/03/02
◎不動産情報サイトや他社のホームページ掲載物件でもお気軽にご相談ください。
住宅ローンシミュレーション
このマンションをローンで買うと
月々 円です
数字を入替えて計算してみましょう
- 借入期間
- 年
- 金利
- %
※頭金・ボーナス払い0円での返済金額です。変動店頭金利2.475%から1.85%優遇で表示。
お客様のご要件により金利優遇や借入期間は異なります。
【分数】について
分数は出来る限りマンションの玄関から駅の改札や出入り口に近いところで測っています。 よってパンフレットなどの表示分数と異なる場合があります。尚、徒歩で歩くことを基準にしているので、 車の通行が困難な場所もありました。坂道や階段は分数に考慮していません。
【管理形態】について
【住込み】 通常週5日以上の勤務で管理員がマンション内に居住
【通勤A/24時間】 24時間交代で管理員又は警備員が勤務
【通勤B/週5日以上】 1週間の内5日以上管理員が通勤勤務
【通勤C/週4日以内】 1週間の内4日以内管理員が通勤勤務
【通勤】 管理員が通勤勤務
【巡回】 指定日に一定時間管理員が通勤勤務
【無人】 管理員の勤務はなく清掃業務のみやカメラ等でセキュリティ管理
【自主管理】 管理業者に委託せず業務は住民で分担。保守点検は専門業者に委託
【勤務時間】 9時~17時が一般で、午前中のみや曜日よって時間が異なることもあります。
【ペット】について
将来飼育可が不可に、不可が可に替わることがあります。
【設備料金】について
駐車場、バイク、自転車置場の台数や料金は変わることがあります。
なかなかマンションが見つからない!とお思いの方、
そんなときは「希望条件登録サービス」をご利用ください。
マンションナビが登録くださった内容に一致した情報が入り次第ご連絡いたします。
この物件を見た方は以下の物件も
チェックしています。
こんな人が
メンバー登録しています
- 初めて中古マンションを買う人
- ゆっくり探している人
- 物件のデメリットも知りたい人
- 自分に合った物件を見つけたい人

全力でサポートします!

















そんちょうさんコメント
◆ 玄関横の洋室には、エアコンが設置可能です。一方、真ん中の洋室は不明なので、現地を確認しておきましょう。また、玄関からリビングまで扉がないので、空調が少し気になるところです。リビングがL字型になっていますので、ダイニングとリビングを使い分けしやすい間取りですね。