
東大阪サンハイツ
販売価格 | 1,350万円 |
---|---|
住所 | 東大阪市稲田新町3丁目12-20 |
交通 | JR学研都市線 『徳庵』 駅 徒歩 14分 中央線 『長田』 駅 徒歩 17分 |
- ズバ評
合計 - 72点
- 価格
- 18点
- 間取
- 16点
- 管理
- 18点
- リフォ
ーム - 8点
- 向階
- 12点
写真
物件詳細
- 価 格
- 1,350万円
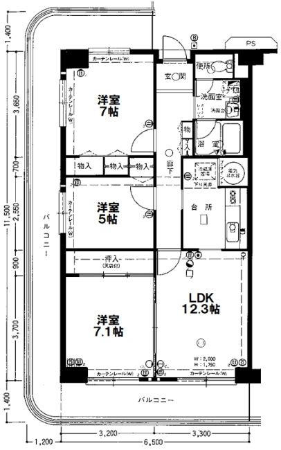
- 専有面積
- 74.35 m2 ( 22.68坪 )
- バルコニー/向き
- 30.16 m2 西と北と東
- 所在階
- 10 階建の3 階部分
- 部屋の現状
- 空室(見学可)
- 引渡し時期
- 相談
- 管理費
- 7430円
- 修繕積立金
- 8180円
- ペット飼育
- 不可
- 駐車場状況
- 空無
- 駐車場月額
- 9,000円~10,000円
- 建物構造
- 鉄骨鉄筋コンクリート造
- 建築年月
- 1981 年(昭和56年)9 月
- 総戸数
- 193 戸
- 管理会社
- 長谷工コミュニティ
- 管理形態
- 通勤B 週5日以上
- 学校区
- 楠根東小・楠根中
- 取引態様
- 仲介
- そんちょうさん
のズバコメ - ※現在商談中につき、ご見学いただけない場合がございます。
(10月6日商談中です。)
◆ リフォームを前提に、予算立てしておきましょう。この広さでフルリフォームだと、およそ730万円以上は必要でしょう。バルコニーに各部屋が面していますので、エアコンの設置は可能です。ただし、ブレーカーの容量は確認しておきましょう。キッチンスペースは確認しておきましょう。リビングと洋室7.1帖は、夏になると西日対策の遮光カーテンなどが必要でしょう。その反面、西窓は風通しが良く、換気もしやすいでしょう。
- マンション設備
- 電気
- 上水道
- 下水道
- 都市ガス
- 防犯カメラ設置
- ゴミ置き場
- 敷地内・隣接公園あり
- ルーフバルコニー付住戸あり
- 専用庭付住戸あり
- 駐車場ゲートあり
- 管理人室
- 集合ポスト
- エレベーター:2基
- ペット飼育不可
- 集会室
- インターネット利用可
- 室内設備
- 網戸
- 物入れ
- フローリング
- クッションフロア
- インターホン
- エアコンコンセント
- カーテンレール
- コンセント
- テレビコンセント
- 電話差し込み
- 分電盤
- 電気温水器
- 押入れ
- 手洗付便器
- タオル掛け
- ペーパーホルダー
- 温水洗浄便座
- トイレ換気扇
- 洗面化粧台
- 浴室換気扇
- システムキッチン
- IHコンロ
- レンジフード
- 給湯器
- バルコニー
- リフォーム履歴
- 補足・備考
- 角部屋、自治会費:月200円 ※現況での引き渡しとなります。家電製品・家具は撤去します。
- 情報更新日
- 2025/10/14
◎不動産情報サイトや他社のホームページ掲載物件でもお気軽にご相談ください。
住宅ローンシミュレーション
このマンションをローンで買うと
月々 円です
数字を入替えて計算してみましょう
- 借入期間
- 年
- 金利
- %
※頭金・ボーナス払い0円での返済金額です。変動店頭金利2.475%から1.85%優遇で表示。
お客様のご要件により金利優遇や借入期間は異なります。
【分数】について
分数は出来る限りマンションの玄関から駅の改札や出入り口に近いところで測っています。 よってパンフレットなどの表示分数と異なる場合があります。尚、徒歩で歩くことを基準にしているので、 車の通行が困難な場所もありました。坂道や階段は分数に考慮していません。
【管理形態】について
【住込み】 通常週5日以上の勤務で管理員がマンション内に居住
【通勤A/24時間】 24時間交代で管理員又は警備員が勤務
【通勤B/週5日以上】 1週間の内5日以上管理員が通勤勤務
【通勤C/週4日以内】 1週間の内4日以内管理員が通勤勤務
【通勤】 管理員が通勤勤務
【巡回】 指定日に一定時間管理員が通勤勤務
【無人】 管理員の勤務はなく清掃業務のみやカメラ等でセキュリティ管理
【自主管理】 管理業者に委託せず業務は住民で分担。保守点検は専門業者に委託
【勤務時間】 9時~17時が一般で、午前中のみや曜日よって時間が異なることもあります。
【ペット】について
将来飼育可が不可に、不可が可に替わることがあります。
【設備料金】について
駐車場、バイク、自転車置場の台数や料金は変わることがあります。
なかなかマンションが見つからない!とお思いの方、
そんなときは「希望条件登録サービス」をご利用ください。
マンションナビが登録くださった内容に一致した情報が入り次第ご連絡いたします。
この物件を見た方は以下の物件も
チェックしています。
こんな人が
メンバー登録しています
- 初めて中古マンションを買う人
- ゆっくり探している人
- 物件のデメリットも知りたい人
- 自分に合った物件を見つけたい人

全力でサポートします!
そんちょうさんコメント
(10月6日商談中です。)
◆ リフォームを前提に、予算立てしておきましょう。この広さでフルリフォームだと、およそ730万円以上は必要でしょう。バルコニーに各部屋が面していますので、エアコンの設置は可能です。ただし、ブレーカーの容量は確認しておきましょう。キッチンスペースは確認しておきましょう。リビングと洋室7.1帖は、夏になると西日対策の遮光カーテンなどが必要でしょう。その反面、西窓は風通しが良く、換気もしやすいでしょう。