
シャルマンフジ鴻池新田グランフォーラム
| 販売価格 | 2,490万円 |
|---|---|
| 住所 | 東大阪市鴻池町2丁目1-6 |
| 交通 | JR学研都市線 『鴻池新田』 駅 徒歩 6分 |
- ズバ評
合計 - 80点
- 価格
- 17点
- 間取
- 17点
- 管理
- 16点
- リフォ
ーム - 15点
- 向階
- 15点
写真
室内写真
物件詳細
- 価 格
- 2,490万円
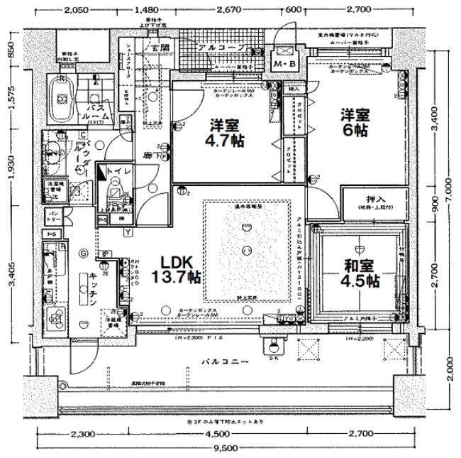
- 専有面積
- 65.43 m2 ( 19.96坪 )
- バルコニー/向き
- 18.28 m2 東
- 所在階
- 10 階建の4 階部分
- 部屋の現状
- 空室(見学可)
- 引渡し時期
- 相談
- 管理費
- 9530円
- 修繕積立金
- 5900円
- ペット飼育
- 不可
- 駐車場状況
- 空無
- 駐車場月額
- 9,000円~10,000円
- 建物構造
- 鉄筋コンクリート造
- 建築年月
- 2003 年(平成15年)7 月
- 総戸数
- 80 戸
- 管理会社
- フジ・アメニティサービス
- 管理形態
- 通勤B 週5日以上
- 学校区
- 鴻池東小・盾津中
- 取引態様
- 仲介
- そんちょうさん
のズバコメ - 2025年12月度ご成約いただきました。 (成約済み)◆ 65㎡と決して広くありませんが、ロスが少ないので、使い勝手もいいでしょう。玄関収納は容量があり、助かりますね。また、リネン庫やパントリーも備わっています。全室に、エアコンが設置可能です。キッチンからも洗面室へ入室できて便利ですね。また、キッチンから暖気が流れて、冬場でも寒くないでしょう。リビングには大きな窓があり、とても明るいでしょう。積立金は将来値上がりますので、想定しておきましょう。
- マンション設備
- 電気
- 上水道
- 下水道
- 都市ガス
- 防犯カメラ設置
- ゴミ置き場
- 1階に住居なし
- オートロック
- 管理人室
- 集合ポスト
- 宅配ボックス
- エレベーター:2基 9人乗り
- ペット飼育不可
- インターネット利用可
- その他費用:町会費・月250円
- 室内設備
- 玄関ポーチ・アルコープ
- 下駄箱
- ルーバー面格子
- 網戸
- クローゼット
- フローリング
- クッションフロア
- 床暖房
- インターホン
- エアコンコンセント
- カーテンレール
- コンセント
- テレビコンセント
- 電話差し込み
- 分電盤
- 押入れ
- 手洗付便器
- タオル掛け
- ペーパーホルダー
- 温水洗浄便座
- トイレ換気扇
- トイレ内収納又は棚
- 洗濯機用防水パン
- 洗面化粧台
- 三面鏡
- 浴室乾燥暖房機
- 風呂追い焚き
- システムキッチン
- ガス3口コンロ
- レンジフード
- 火災報知器
- 給湯器
- バルコニー
- 物干金物
- スロップシンク
- リフォーム履歴
- 補足・備考
- アルコープ2.55㎡、室外機置場1.61㎡、町会費:月250円 ※契約不適合責任免責(→説明/不具合などがあっても売主は修理などしない)です。 ◆価格変更:2,650万円→2,490万円
- 情報更新日
- 2025/12/16
◎不動産情報サイトや他社のホームページ掲載物件でもお気軽にご相談ください。
住宅ローンシミュレーション
このマンションをローンで買うと
月々 円です
数字を入替えて計算してみましょう
- 借入期間
- 年
- 金利
- %
※頭金・ボーナス払い0円での返済金額です。変動店頭金利2.475%から1.85%優遇で表示。
お客様のご要件により金利優遇や借入期間は異なります。
【分数】について
分数は出来る限りマンションの玄関から駅の改札や出入り口に近いところで測っています。 よってパンフレットなどの表示分数と異なる場合があります。尚、徒歩で歩くことを基準にしているので、 車の通行が困難な場所もありました。坂道や階段は分数に考慮していません。
【管理形態】について
【住込み】 通常週5日以上の勤務で管理員がマンション内に居住
【通勤A/24時間】 24時間交代で管理員又は警備員が勤務
【通勤B/週5日以上】 1週間の内5日以上管理員が通勤勤務
【通勤C/週4日以内】 1週間の内4日以内管理員が通勤勤務
【通勤】 管理員が通勤勤務
【巡回】 指定日に一定時間管理員が通勤勤務
【無人】 管理員の勤務はなく清掃業務のみやカメラ等でセキュリティ管理
【自主管理】 管理業者に委託せず業務は住民で分担。保守点検は専門業者に委託
【勤務時間】 9時~17時が一般で、午前中のみや曜日よって時間が異なることもあります。
【ペット】について
将来飼育可が不可に、不可が可に替わることがあります。
【設備料金】について
駐車場、バイク、自転車置場の台数や料金は変わることがあります。
なかなかマンションが見つからない!とお思いの方、
そんなときは「希望条件登録サービス」をご利用ください。
マンションナビが登録くださった内容に一致した情報が入り次第ご連絡いたします。
この物件を見た方は以下の物件も
チェックしています。
こんな人が
メンバー登録しています
- 初めて中古マンションを買う人
- ゆっくり探している人
- 物件のデメリットも知りたい人
- 自分に合った物件を見つけたい人

全力でサポートします!











































そんちょうさんコメント
2025年12月度ご成約いただきました。 (成約済み)◆ 65㎡と決して広くありませんが、ロスが少ないので、使い勝手もいいでしょう。玄関収納は容量があり、助かりますね。また、リネン庫やパントリーも備わっています。全室に、エアコンが設置可能です。キッチンからも洗面室へ入室できて便利ですね。また、キッチンから暖気が流れて、冬場でも寒くないでしょう。リビングには大きな窓があり、とても明るいでしょう。積立金は将来値上がりますので、想定しておきましょう。