- NEW
- ペット可

藤和シティホームズ布施
販売価格 | 3,480万円 |
---|---|
住所 | 東大阪市長堂3丁目5-36 |
交通 | 近鉄奈良線 『布施』 駅 徒歩 6分 |
- ズバ評
合計 - 84点
- 価格
- 14点
- 間取
- 16点
- 管理
- 20点
- リフォ
ーム - 16点
- 向階
- 18点
写真
物件詳細
- 価 格
- 3,480万円
- 専有面積
- 67.26 m2 ( 20.51坪 )
- バルコニー/向き
- 13.00 m2 南
- 所在階
- 15 階建の4 階部分
- 部屋の現状
- 居住中(見学可)
- 引渡し時期
- 相談
- 管理費
- 8410円
- 修繕積立金
- 11440円
- ペット飼育
- 可 (規約あり)
- 駐車場状況
- 空有
- 駐車場月額
- 9,000円~10,000円
- 建物構造
- 鉄筋コンクリート造
- 建築年月
- 2005 年(平成17年)2 月
- 総戸数
- 84 戸
- 管理会社
- 三菱地所コミュニティ
- 管理形態
- 通勤B 週5日以上
- 学校区
- 長堂小・長栄中
- 取引態様
- 仲介
- そんちょうさん
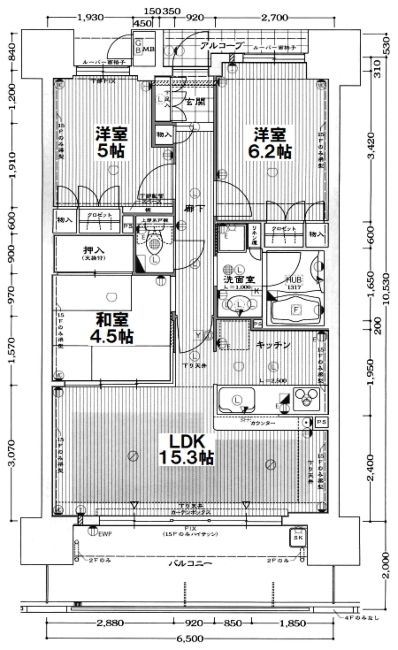
のズバコメ - ◆ これまでに、2組の売買をお手伝いしましたマンションなので、馴染み深く、皆様から良好な住み心地だと聞いております。11年前にリフォームされていますが、状態はしっかり見ておきましょう。4階ですが、バルコニー側には建物が建っていますので、ロケーションや日当たりは確認しましょう。洋室5帖にも、エアコンは設置可能です。和室は、廊下からも直接出入り可能です。リビングには床暖房があり、冬は足元からポカポカ温かいですよ。リビングには建物の柱が出っ張っておらず、家具類が配置しやすいでしょう。
- マンション設備
- 電気
- 上水道
- 下水道
- 都市ガス
- 防犯カメラ設置
- ゴミ置き場
- 1階に住居なし
- 駐車場ゲートあり
- オートロック
- 管理人室
- 集合ポスト
- 宅配ボックス
- エレベーター:1基 13人乗り
- ペット飼育可
- ペット足洗い場
- 集会室
- 自動販売機あり
- 大阪府防犯モデルマンション
- インターネット利用可:月1,812円
- その他費用:自治会費・月300円
- 室内設備
- 玄関ドアダブルロック
- 防犯キー
- 人感センサー照明
- 下駄箱
- ルーバー面格子
- 網戸
- 物入れ
- クローゼット
- フローリング
- 床暖房
- モニター付きインターホン
- エアコンコンセント
- カーテンレール
- コンセント
- テレビコンセント
- 電話差し込み
- インターネット接続可
- 分電盤
- 天袋
- 押入れ
- 手洗付便器
- タオル掛け
- ペーパーホルダー
- 温水洗浄便座
- 洗濯機用防水パン
- 洗面化粧台
- 三面鏡
- シャワー付水栓
- 浴室乾燥暖房機
- 24時間換気
- 風呂追い焚き
- システムキッチン
- カウンター付キッチン
- ガス3口コンロ
- レンジフード
- 食器洗い乾燥機
- 浄水器
- ディスポーザー
- 給湯器
- バルコニー
- 物干金物
- 防水コンセント
- スロップシンク
- リフォーム履歴
- ◎平成26年7月 ビルトインコンロを新調、襖貼替、網戸貼替、クロス貼替、クッションフロア貼替、畳表替、パッキン交換、建具調整
- 補足・備考
- アルコープ2.49㎡、自治会費:月300円、インターネット利用料:月1,512円、TOWAネットセキュリティシステム(24時間365日体制) ※契約不適合責任免責(→説明/不具合などがあっても売主は修理などしない)です。 ◎売主様は住み替えのため、引渡し猶予10日間を要します。
- 情報更新日
- 2025/10/14
◎不動産情報サイトや他社のホームページ掲載物件でもお気軽にご相談ください。
住宅ローンシミュレーション
このマンションをローンで買うと
月々 円です
数字を入替えて計算してみましょう
- 借入期間
- 年
- 金利
- %
※頭金・ボーナス払い0円での返済金額です。変動店頭金利2.475%から1.85%優遇で表示。
お客様のご要件により金利優遇や借入期間は異なります。
【分数】について
分数は出来る限りマンションの玄関から駅の改札や出入り口に近いところで測っています。 よってパンフレットなどの表示分数と異なる場合があります。尚、徒歩で歩くことを基準にしているので、 車の通行が困難な場所もありました。坂道や階段は分数に考慮していません。
【管理形態】について
【住込み】 通常週5日以上の勤務で管理員がマンション内に居住
【通勤A/24時間】 24時間交代で管理員又は警備員が勤務
【通勤B/週5日以上】 1週間の内5日以上管理員が通勤勤務
【通勤C/週4日以内】 1週間の内4日以内管理員が通勤勤務
【通勤】 管理員が通勤勤務
【巡回】 指定日に一定時間管理員が通勤勤務
【無人】 管理員の勤務はなく清掃業務のみやカメラ等でセキュリティ管理
【自主管理】 管理業者に委託せず業務は住民で分担。保守点検は専門業者に委託
【勤務時間】 9時~17時が一般で、午前中のみや曜日よって時間が異なることもあります。
【ペット】について
将来飼育可が不可に、不可が可に替わることがあります。
【設備料金】について
駐車場、バイク、自転車置場の台数や料金は変わることがあります。
なかなかマンションが見つからない!とお思いの方、
そんなときは「希望条件登録サービス」をご利用ください。
マンションナビが登録くださった内容に一致した情報が入り次第ご連絡いたします。
この物件を見た方は以下の物件も
チェックしています。
こんな人が
メンバー登録しています
- 初めて中古マンションを買う人
- ゆっくり探している人
- 物件のデメリットも知りたい人
- 自分に合った物件を見つけたい人

全力でサポートします!
そんちょうさんコメント
◆ これまでに、2組の売買をお手伝いしましたマンションなので、馴染み深く、皆様から良好な住み心地だと聞いております。11年前にリフォームされていますが、状態はしっかり見ておきましょう。4階ですが、バルコニー側には建物が建っていますので、ロケーションや日当たりは確認しましょう。洋室5帖にも、エアコンは設置可能です。和室は、廊下からも直接出入り可能です。リビングには床暖房があり、冬は足元からポカポカ温かいですよ。リビングには建物の柱が出っ張っておらず、家具類が配置しやすいでしょう。