- ▲▼
- ペット可

メガシティタワーズ 西棟
| 販売価格 | 5,380万円 | 
|---|---|
| 住所 | 八尾市龍華町1丁目4-1 | 
| 交通 | JR関西本線 『久宝寺』 駅 徒歩 2分 | 
- ズバ評
 合計
- 65点
- 価格
- 1点
- 間取
- 17点
- 管理
- 16点
- リフォ
 ーム
- 20点
- 向階
- 11点
写真
物件詳細
- 価 格
- 5,380万円
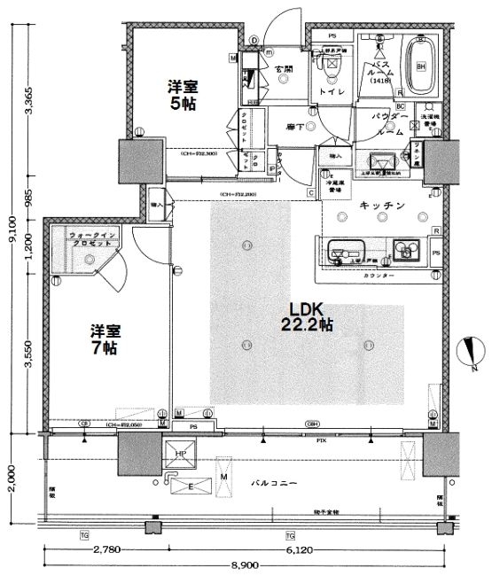
- 専有面積
- 71.80 m2 ( 21.90坪 )
- バルコニー/向き
- 17.80 m2 北
- 所在階
- 40 階建の27 階部分
- 部屋の現状
- 空室(見学可)
- 引渡し時期
- 相談
- 管理費
- 15100円
- 修繕積立金
- 18960円
- ペット飼育
- 可 (規約あり)
- 駐車場状況
- 空有
- 駐車場月額
- 9,000円~10,000円
- 建物構造
- 鉄筋コンクリート造
- 建築年月
- 2011 年(平成23年)2 月
- 総戸数
- 705 戸
- 管理会社
- 住友不動産建物サービス
- 管理形態
- 通勤A 24時間
- 学校区
- 亀井小・亀井中
- 取引態様
- 仲介
- そんちょうさん
 のズバコメ
- ◆ これだけ暑い夏が今後も続くようなら、北向きはこれから人気が出るかもしれませんね。日が差し込みませんので、カーテンなしで生活されている方もおられますよ。居室は全てリビングからの出入りとなりますので、コミュニケーションは取りやすいでしょう。一方、洋室5帖はリビングと引き戸で仕切るため、互いの音は聞こえることもあるでしょう。室内全体の収納容量と、持ち込む物量は確認しておきましょう。
- マンション設備
- 電気
- オール電化
- 上水道
- 下水道
- 都市ガス
- 防犯カメラ設置
- ゴミ置き場
- ゴミドラムあり
- 敷地内・隣接公園あり
- 店舗付きマンション
- 1階に住居なし
- 駐車場ゲートあり
- 来客用駐車場
- オートロック
- 管理人室
- 集合ポスト
- 宅配ボックス
- エレベーター:各棟7基
- ペット飼育可:2匹まで可能
- 集会室
- ゲストルーム
- キッズルーム
- パーティールーム
- 共用トイレ
- 設計性能評価あり
- 建築性能評価あり
- インターネット利用可
 
- 室内設備
- 玄関ドアダブルロック
- 防犯キー
- 下駄箱
- 網戸
- 納戸
- 物入れ
- クローゼット
- ウォークインクローゼット
- バリアフリー
- フローリング
- クッションフロア
- 床暖房
- モニター付きインターホン
- エアコンコンセント
- カーテンレール
- コンセント
- テレビコンセント
- 電話差し込み
- インターネット接続可
- 分電盤
- 電気温水器
- 手洗付便器
- タオル掛け
- ペーパーホルダー
- 温水洗浄便座
- トイレ換気扇
- トイレ内収納又は棚
- 洗濯機用防水パン
- 洗面化粧台
- 三面鏡
- シャワー付水栓
- 浴室乾燥暖房機
- 24時間換気
- 風呂追い焚き
- システムキッチン
- カウンター付キッチン
- 人造大理石カウンター
- IHコンロ
- レンジフード
- 食器洗い乾燥機
- 浄水器
- 火災報知器
- 給湯器
- バルコニー
- 物干金物
 
- リフォーム履歴
- ◎2025年(令和7年)7月 システムキッチン・ユニットバス・洗面化粧台・トイレ・建具を新調、全室クロス貼替、クッションフロア貼替、床材貼替、ハウスクリーニング
- 補足・備考
- オール電化マンション(エコキュート) ■駐輪場/月100~300円 ■バイク置場/月1,000~2,000円 ◆2027年(令和9年)2月より、積立金が値上がり予定です。 ◎ペットは、2匹まで飼育可能です。 ◆価格変更:5,480万円→5,380万円
- 情報更新日
- 2025/10/31
◎不動産情報サイトや他社のホームページ掲載物件でもお気軽にご相談ください。
住宅ローンシミュレーション
このマンションをローンで買うと
月々 円です
数字を入替えて計算してみましょう
- 借入期間
- 年
- 金利
- %
※頭金・ボーナス払い0円での返済金額です。変動店頭金利2.475%から1.85%優遇で表示。
                お客様のご要件により金利優遇や借入期間は異なります。
【分数】について
              
                分数は出来る限りマンションの玄関から駅の改札や出入り口に近いところで測っています。 よってパンフレットなどの表示分数と異なる場合があります。尚、徒歩で歩くことを基準にしているので、 車の通行が困難な場所もありました。坂道や階段は分数に考慮していません。
【管理形態】について
                
                【住込み】 通常週5日以上の勤務で管理員がマンション内に居住
                  【通勤A/24時間】 24時間交代で管理員又は警備員が勤務
                  【通勤B/週5日以上】 1週間の内5日以上管理員が通勤勤務
                  【通勤C/週4日以内】 1週間の内4日以内管理員が通勤勤務
                  【通勤】 管理員が通勤勤務
                  【巡回】 指定日に一定時間管理員が通勤勤務
                  【無人】 管理員の勤務はなく清掃業務のみやカメラ等でセキュリティ管理
                  【自主管理】 管理業者に委託せず業務は住民で分担。保守点検は専門業者に委託
                  【勤務時間】 9時~17時が一般で、午前中のみや曜日よって時間が異なることもあります。
【ペット】について
将来飼育可が不可に、不可が可に替わることがあります。
【設備料金】について
駐車場、バイク、自転車置場の台数や料金は変わることがあります。
なかなかマンションが見つからない!とお思いの方、
              そんなときは「希望条件登録サービス」をご利用ください。
              マンションナビが登録くださった内容に一致した情報が入り次第ご連絡いたします。
この物件を見た方は以下の物件も
              チェックしています。
            
          こんな人が
              メンバー登録しています
            - 初めて中古マンションを買う人
- ゆっくり探している人
- 物件のデメリットも知りたい人
- 自分に合った物件を見つけたい人

全力でサポートします!

















































そんちょうさんコメント
◆ これだけ暑い夏が今後も続くようなら、北向きはこれから人気が出るかもしれませんね。日が差し込みませんので、カーテンなしで生活されている方もおられますよ。居室は全てリビングからの出入りとなりますので、コミュニケーションは取りやすいでしょう。一方、洋室5帖はリビングと引き戸で仕切るため、互いの音は聞こえることもあるでしょう。室内全体の収納容量と、持ち込む物量は確認しておきましょう。